Projecten
Bureau
Contact
Grimbergen
Architecten
Kerkstraat 68
6031CJ
Nederweert
0495-842242
info@grimbergenarchitecten.nl
< Vorig project
Naar overzicht
Volgend project >
Previous
Next
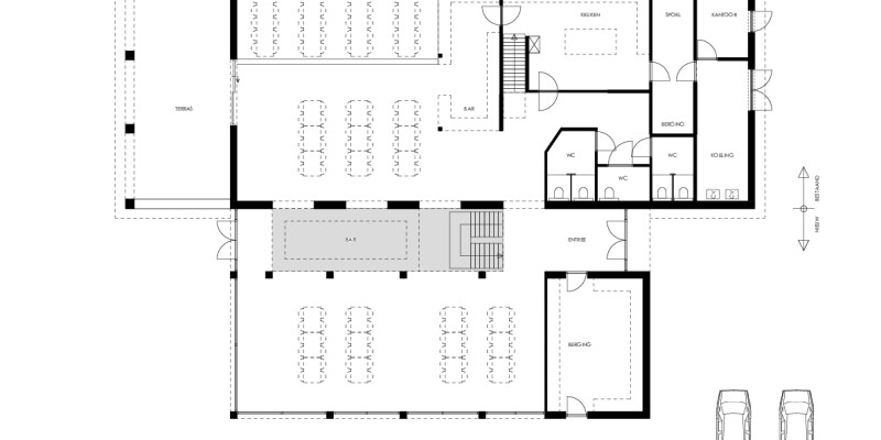
ACTIVITEITENBEDRIJF OSPEL
BEDRIJFSUITBREIDING TE OSPEL
ONTWIKKELINGSVISIE